Mehr anzeigen zum Thema Beschreibung
Beschreibung
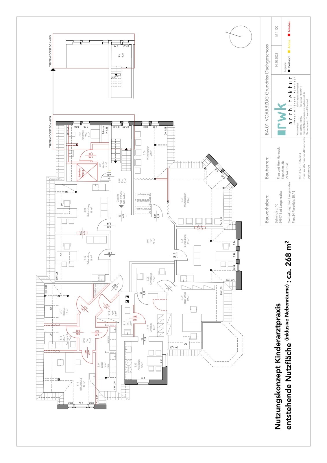
Der zweigeschossige späthistorische Klinkerbau unter französischem Mansarddach mit großer Dachterrasse und einer Vielzahl vorspringender Anbauten wurde von einer Unternehmerfamilie als repräsentaives Wohnhaus samt Nebengebäude in exklusiver Wohnlage von Bad Langensalza errichtet. Der massive, sandsteinfarbene Verblendklinkerbau besticht durch seine offenen Loggien im Fachwerkbau, dem südlichen Turm mit einem weit auskragendem Spitzhelm, farbiger Bleiverglasung im Treppenhaus und vielen weiteren Details. Ein Meisterwerk an Baukunst und Architektur. Die Immobilie wurde vor 1990 für medizinische Zwecke genutzt. Im Jahr 2004 wurde die Immobilie durch eine preisgekrönte denkmalpfegerische Sanierung mit viel Liebe zum Detail zum Büro- und Verwaltungsgebäude umgestaltet. Funktionalität und Erhalt der historischen Bausubstanz des Einzeldenkmals standen hierbei im Vordergrund. Die 5 Geschosse des Hauses werden durch den Einbau eines neuen Fahrstuhls zusätzlich erschlossen. Im Dachgeschoß auf einer Nutzfläche von ca. 268qm könnten Ihre Praxisräume enstehen. Die Umgestaltung der Räume erfolgt auf Basis des im Vorfeld angestimmten Umbau- und Modernsierungskonzeptes, welches eine optimale Gestaltung und Nutzung Ihrer Praxis, ganz nach Ihren individuellen Vorgaben gewährleistet.
Mehr anzeigen zum Thema Lage
Lage
Die Kurstadt Bad Langensalza ist die zweitgrößte Stadt im Unstrut–Hainich–Kreis und liegt an der Salza – einem kleinen Flüsschen, welches in die Unstrut mündet.
Gleichzeitig liegt Bad Langensalza im westlichen Bereich des Thüringer Kernlandes und am Rande des hoch interessanten Nationalparks Hainich.
Wer in entspannter Atmosphäre die individuellen Gärten und Parkanlagen der Stadt besucht, bemerkt sofort, dass besonders die Rosenzucht und deren Anbau bei uns auf eine lange Tradition zurück schaut. Über 100 Jahre Erfahrung auch im Gartenbau prägen das romantische Stadtbild. Aufgrund seines einzigartigen Ambientes erhielt Bad Langensalza im Juli 2002 das Prädikat Rosenstadt und ist seit dem Jahr 2005 staatlich anerkanntes Schwefel-Sole-Heilbad.
Nach der Entdeckung von Sole und Mineralwasser werden die Kurgesellschaft Bad Langensalza mbH Thermalsole und Schwefelbad und der Nationalpark Hainich gegründet, die "Rehaklinik an der Salza", die Friederiken-Therme und die sieben einzigartigen Themengärten (z.B. Japanischer Garten, Rosengarten etc.) eröffnet.
Ein Besuch der historischen Altstadt und der gotischen Marktkirche St. Bonifacius lohnt ebenfalls.
In der Stadt haben sich hauptsächlich Mittelstandsbetriebe niedergelassen. Die Stadt verfügt über einen Flugplatz und einen Bahnhof, mit stündlicher Anbindung an Erfurt und Gotha, sowie zweistündlicher Anbindung an Göttingen und Kassel. Bis zur Landeshauptstadt Erfurt sind es ca. 35 km. Einen bedeutenden Wirtschaftsfaktor stellt der Tourismus dar, resultierend aus dem Kurbetrieb.
Gleichzeitig liegt Bad Langensalza im westlichen Bereich des Thüringer Kernlandes und am Rande des hoch interessanten Nationalparks Hainich.
Wer in entspannter Atmosphäre die individuellen Gärten und Parkanlagen der Stadt besucht, bemerkt sofort, dass besonders die Rosenzucht und deren Anbau bei uns auf eine lange Tradition zurück schaut. Über 100 Jahre Erfahrung auch im Gartenbau prägen das romantische Stadtbild. Aufgrund seines einzigartigen Ambientes erhielt Bad Langensalza im Juli 2002 das Prädikat Rosenstadt und ist seit dem Jahr 2005 staatlich anerkanntes Schwefel-Sole-Heilbad.
Nach der Entdeckung von Sole und Mineralwasser werden die Kurgesellschaft Bad Langensalza mbH Thermalsole und Schwefelbad und der Nationalpark Hainich gegründet, die "Rehaklinik an der Salza", die Friederiken-Therme und die sieben einzigartigen Themengärten (z.B. Japanischer Garten, Rosengarten etc.) eröffnet.
Ein Besuch der historischen Altstadt und der gotischen Marktkirche St. Bonifacius lohnt ebenfalls.
In der Stadt haben sich hauptsächlich Mittelstandsbetriebe niedergelassen. Die Stadt verfügt über einen Flugplatz und einen Bahnhof, mit stündlicher Anbindung an Erfurt und Gotha, sowie zweistündlicher Anbindung an Göttingen und Kassel. Bis zur Landeshauptstadt Erfurt sind es ca. 35 km. Einen bedeutenden Wirtschaftsfaktor stellt der Tourismus dar, resultierend aus dem Kurbetrieb.
Mehr anzeigen zum Thema Sonstige Angaben
Sonstige Angaben
Kaltmiete: 7,50€/qm x 268qm = 2.010 € pro Monat
Nebenkostenverauszahlung: 2,50€/qm x 268qm = 670 € pro Monat
Kaution: 2 Kaltmieten das entspricht 4.020 €
Mietdauer: 5 Jahre mit abzustimmender Verlängerungsoption
2 PKW Stellplätze im Mietpreis enthalten
Nebenkostenverauszahlung: 2,50€/qm x 268qm = 670 € pro Monat
Kaution: 2 Kaltmieten das entspricht 4.020 €
Mietdauer: 5 Jahre mit abzustimmender Verlängerungsoption
2 PKW Stellplätze im Mietpreis enthalten
Mehr anzeigen zum Thema Sonstige Angaben
Energieausweis
- Nutzungsart
- Gewerbe
- Baujahr lt. Energieausweis
- 1895
- Energieausweis
- es besteht keine Pflicht!
- Warmwasser enthalten
- Ja
- wesentlicher Energieträger
- Gas
Ihr Ansprechpartner
Herr Alexander Ernst
VR Immobilien GmbH Westthüringen
- Fax:
- +4936017995864
- Mobile:
- +491735648433
- E-Mail:
- a.ernst@vr-immoprofi.de
Rathausstraße 9
99947 Bad Langensalza
Aktuelle Konditionen Baufinanzierung
Jetzt Niedrigzinsphase nutzen!
Sichern Sie sich jetzt in der Niedrigzinsphase langfristig die niedrigen Sollzinsen. Das gibt Ihnen zum einen Planungssicherheit, zum anderen können Sie so Ihren Tilgungsanteil erhöhen. Damit reduzieren Sie Ihre Restschuld noch schneller und sparen wiederum Darlehenszinsen.
Konditionen | Vergleichsrechner | Budgetrechner | Nebenkostenrechner
Quelle: VR Bank Westthüringen eG










